Продам сад в Москве

Сад в Москве
Цена 9 900 000 р.
Садовое товарищество садоводческое некоммерческое товарищество Михайловское
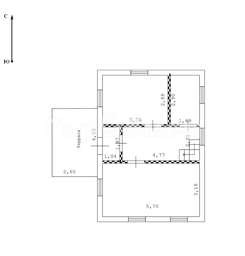
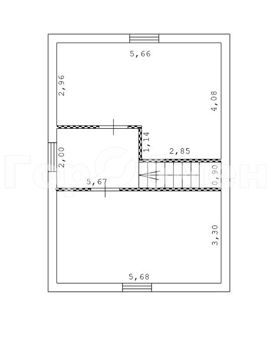
Площадь дома 100 м2, участка 8 м2
**Продаётся двухэтажный отдельный дом в садоводческом некоммерческом товариществе «Михайловское»** Предлагается к покупке уютный двухэтажный дом, который станет вашим идеальным местом для жизни и отдыха. Общая площадь дома составляет 100 квадратных метров, а участок — 8 соток. Дом расположен в СНТ «Михайловское», где вас ждёт спокойная и дружелюбная атмосфера. **Дом:** * **Два этажа.** Планировка дома позволяет рационально использовать пространство и создать комфортную жилую среду. * **Готов к проживанию.** Вам не придётся тратить время и средства на ремонт или достройку — можно сразу заселяться и наслаждаться жизнью в новом доме. * **Коммуникации:** * **Электроснабжение.** Дом подключён к электросети, поэтому вы сможете без проблем использовать все необходимые электроприборы. * **Канализация.** Система канализации уже установлена, что обеспечивает комфорт и гигиеничность проживания. * **Водоснабжение.** В доме проведено водоснабжение, поэтому у вас всегда будет доступ к чистой воде. * **Удобства:** * **Туалет.** В доме есть туалет, что обеспечивает комфорт проживания. * **Веранда.** Прекрасное место для утреннего кофе или вечерних посиделок с семьёй и друзьями. Здесь можно наслаждаться свежим воздухом и видом на участок. * **Кухня.** Полностью готова к использованию, позволит вам с удовольствием заниматься приготовлением пищи. **Участок:** * **Площадь — 8 соток.** Достаточно места для реализации ваших идей: можно разбить сад, огород, устроить зону отдыха с мангалом и беседкой, разместить детскую игровую площадку или поставить гараж. * **Статус — СНТ.** Садоводческое некоммерческое товарищество предлагает благоприятные условия для тех, кто хочет сочетать преимущества загородной жизни с доступностью городской инфраструктуры. Этот дом — отличное решение для тех, кто мечтает о собственном уголке вдали от городской суеты, но при этом не хочет отказываться от комфорта и удобств. Здесь вы сможете создать атмосферу домашнего уюта и реализовать свои мечты о загородной жизни. Не упустите шанс стать владельцем этого замечательного дома!
Объявление № 23306459
Дата подачи:
6 октября 2025 г. 9:20
Дата обновления:
6 октября 2025 г. 9:20
Просмотров 3 Хотите продать быстрее?

Продавец
Агентство недвижимости:
Дроздов Николай Владимирович
Показать номер телефона
Пожаловаться
Комментарии:
Добавить